Delaware
                    
                    
                        Phone:
                        
                          
                            (302) 336-8181
                          
                        
                      
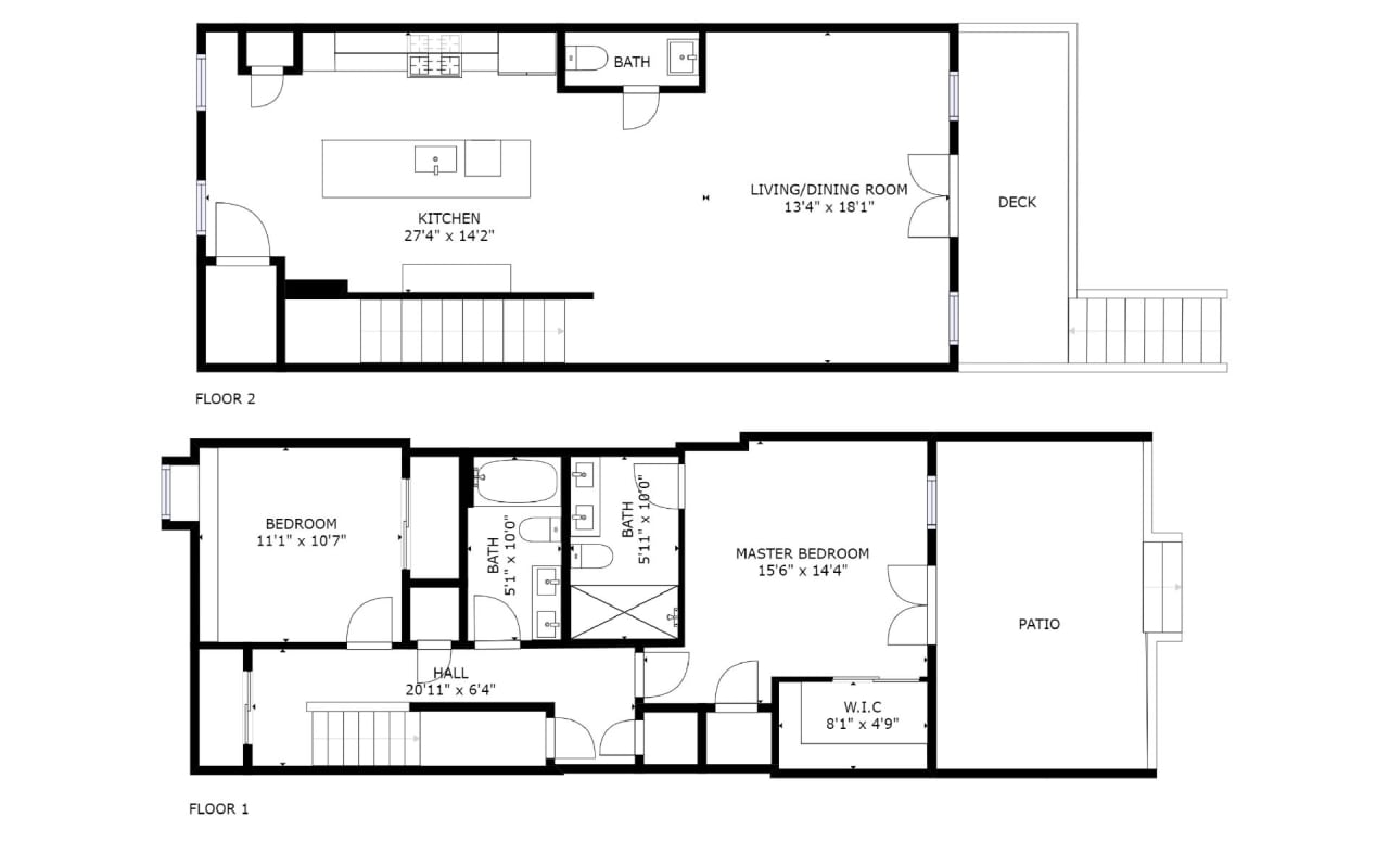
                Two luxury units with unprecedented private outdoor space in Kingman Park.
Bediz Group helped with the layout design of each unit and worked with the developers to pick finishes and materials to get the biggest return on their investment.
With a team of 11 full-time real estate agents and an in-house marketing team, you’ll have unparalleled support in every aspect of your real estate transaction.